Situé au Sud d’Isigny-sur-Mer dans le parc d’activité Isypole, les Caramels d’Isigny y sont implantés depuis 2015.
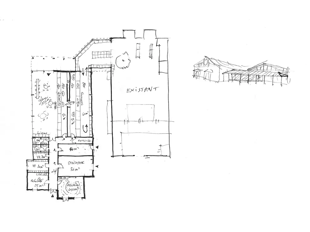
En réponse à un besoin d’extension commerciale et touristique, le projet consistait notamment à réunir deux bâtiments distincts existants en un seul. À la fin, ce bâtiment est devenu les nouvelles Halles des Caramels d’Isigny, intégrant un nouvel espace de vente de 550 m², un glacier de 120 m², des bureaux et locaux sociaux. De ce fait, l’aménagement intérieur a été repensé, révélant une ambiance scénique des plus gourmande.
Les façades de l’Usine des Caramels, située sur la même parcelle, ont été réhabilitées afin d’apporter une cohérence esthétique avec les nouvelles Halles.
L’environnement extérieur a lui aussi été aménagé autrement afin d’accueillir et sécuriser un public en plus grand nombre.
Les halles et le glacier ont réouvert leurs portes respectivement en février et mars 2026.
Date : 2024-2026
Maîtrise d’ouvrage : Caramels d’Isigny
Lieu : Isigny-sur-Mer (14)
Programme : Extension des Halles des Caramels d’Isigny
Aménagement intérieur : Sébastien Jouvin
Surface de plancher : 3 500 m²
Surface d’espaces verts : 780 m² supplémentaires





